Lot 304 – Durian

304

6 Beds

3.5 Baths

3 Car Garage

Main Floor

1089 Sq Ft

Second Floor

1355 Sq Ft

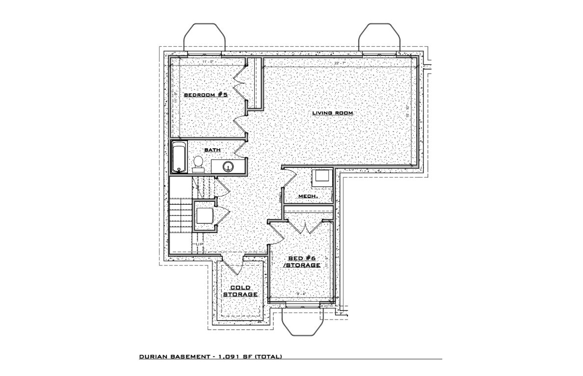
Basement

1091 Sq Ft

Total Finished

3535 Sq Ft

Floorplan

Don't Miss Out!Get updates on pricing and timing for this and other homes under construction

Scroll to Top