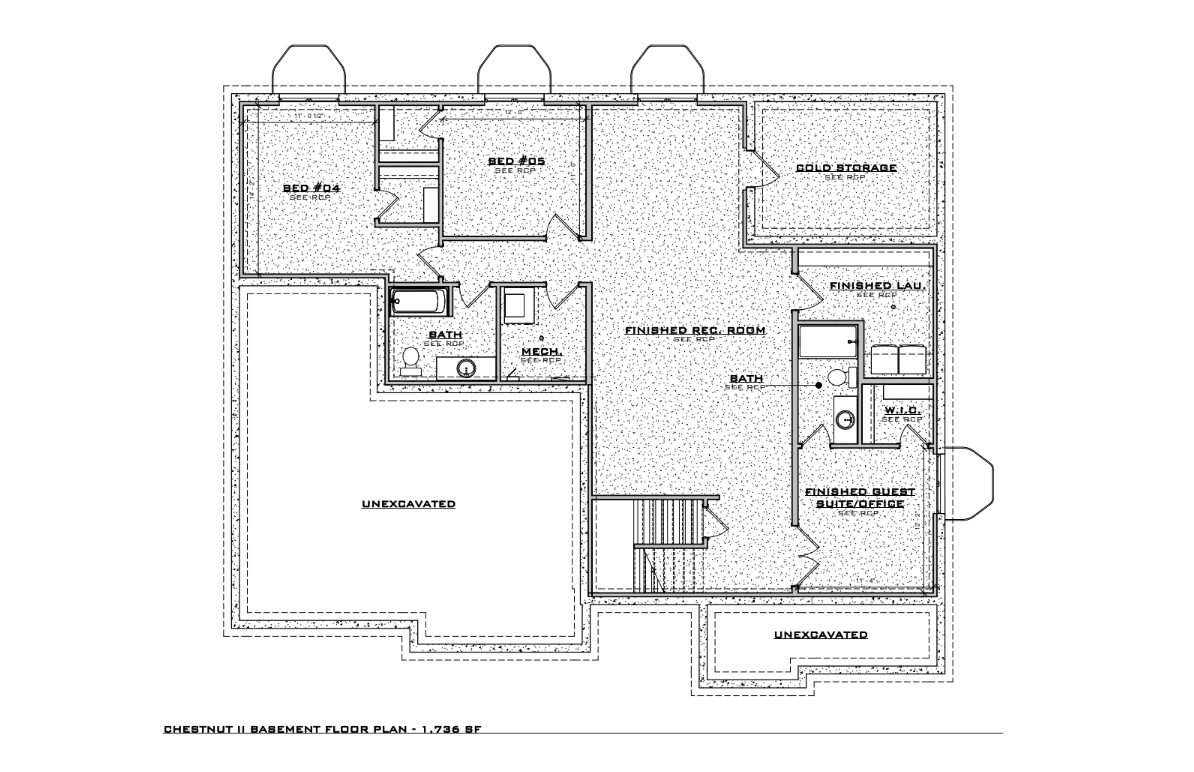
Lot 303 – Chestnut

303

5 Beds

4 Baths

3 Car Garage

Main Floor

1647 Sq Ft

Second Floor

Basement

1736 Sq Ft

Total Finished

3383 Sq Ft

Floorplan

Don't Miss Out!Get updates on pricing and timing for this and other homes under construction

Scroll to Top